Box / posti auto in vendita

Villabate, Viale Europa
€ 110.000
10 locali 10 locali
236 Mq 236 Mq
2 bagni 2 bagni

Box / posti auto in vendita

Villabate, Viale Europa

Descrizione annuncio

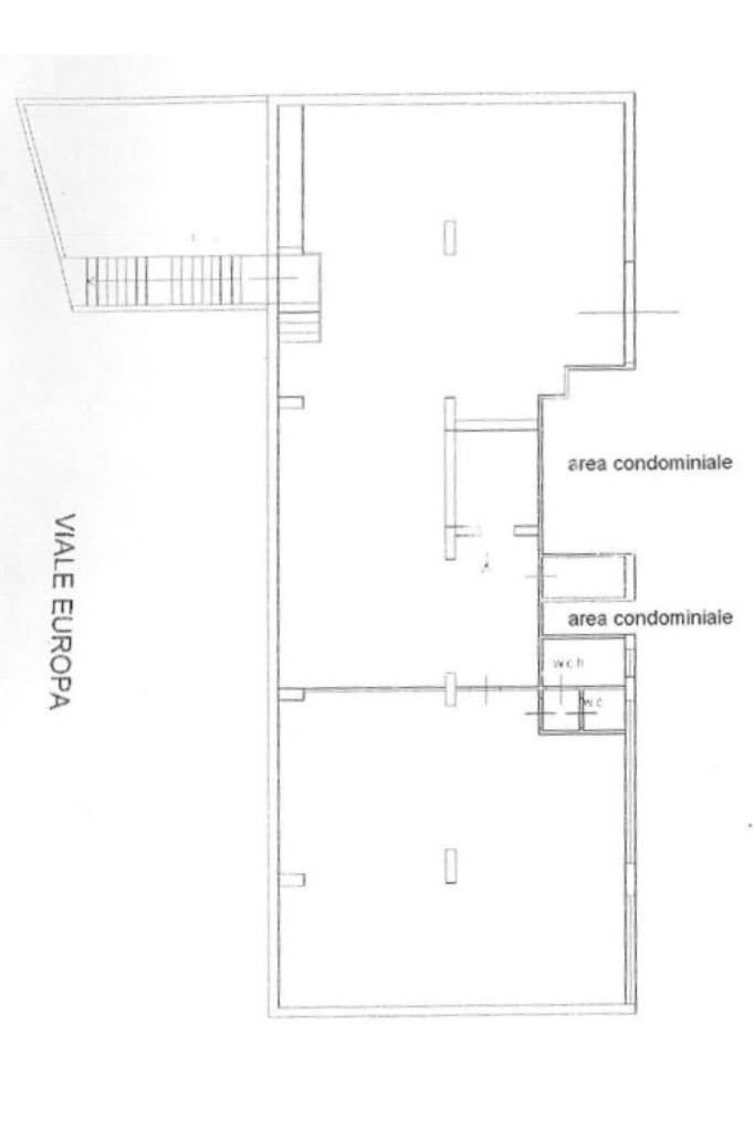
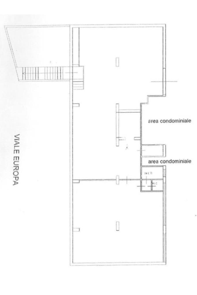
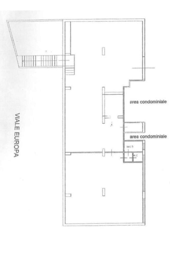
VILLABATE - VIALE EUROPA

Nel cuore di Villabate, su corso principale, proponiamo in vendita un ampio locale di 236 mq, situato al piano seminterrato di uno stabile e con accesso doppio e indipendente.

La proprietà, costruita nel 1970, è classificata come categoria C1, rendendola adatta per attività commerciali.

Il locale si presenta in buone condizioni generali e , dotato di doppio ingresso, garantisce una maggiore versatilità per l'organizzazione degli spazi interni. La presenza di un doppio bagno, tra cui uno con disabili, di un box office e di un sistema di aria condizionata assicura comfort e funzionalità e rende il locale idoneo alla fruizione di svariate tipologie di clientela.

All'interno la predisposizione degli ambienti corrisponde ad un'attività ludico-ricreativa in quanto ex - sala giochi, con area slot e biliardo. L'immobile si presta facilemente ad altre attività ricreative o commerciali.


La posizione centrale rappresenta un ulteriore vantaggio, permettendo di beneficiare della vicinanza ai principali servizi e di un'ottima visibilità.

L'immobile disponde inoltre della pertinenza di un posto auto scoperto all'interno del residence condominiale.

Questa soluzione si presta perfettamente per chi desidera avviare o espandere un'attività commerciale in una zona strategica e ben servita.

La visione dell'immobile e la consultazione della documentazione sono possibili in qualsiasi momento, previo appuntamento. Offriamo anche consulenza creditizia e assicurativa gratuita per rendere il processo di acquisto ancora più agevole.

I NOSTRI RECAPITI:
Chiamate: 091.6146821/091.8249714;
Whatsapp: 388.1588872/091.8249714.
In alternativa, potete contattarci direttamente tramite il link.

Mostra tutto

Nelle vicinanze

Trasporto pubblico Trasporto pubblico
Ficarazzi
Ficarazzi
1,9 Km
Trasporto pubblico
300 m
Galletti - Messina Marine
Galletti - Messina Marine
2,8 Km
Scuole Scuole
Scuola Elementare Fondo Palagonia
440 m
Scuola Media Statale Pietro Palumbo
450 m
Scuole
590 m
1° Circolo Didattico Villabate - Plesso "Don Milani"
870 m
Scuola Secondaria di 1° grado "Cosmo Guastella" - Plesso Portella di Mare
1,1 Km
Farmacia Farmacia
Farmacia D'Anna
70 m
Farmacia Europa
340 m
Farmacia Ganguzza
520 m
Farmacia Ieraci-Riggio
650 m
Parafarmacia Conad
1,0 Km
Supermercati Supermercati
Salumeria - Non solo caffè
60 m
GD
310 m
Conad
320 m
MD
360 m
Fortè
540 m
Negozi Negozi
Sulla bocca di tutti
60 m
Le Gemme
70 m
Tutte le donne
70 m
Igloo
80 m
Castello
80 m
Bar Bar
Capitano
500 m
Crazy Bar
690 m
Camilleri
830 m
Bar
1,4 Km
Ristoranti Ristoranti
Mordi e Fuggi
240 m
Ferro di Cavallo 2
320 m
A Ferrovia
410 m
Fontana
510 m
Villa Fabiana
890 m
Mostra tutto

Caratteristiche

Rif.:
61134747
Piano:
-1 di 6 (Piano seminterrato)
Posti auto:
1
Terrazzi:
1
Arredamento:
Assente
Condizionamento:
Autonomo
Mostra tutto
Prezzo Prezzo
€ 110.000
Rata mutuo Rata mutuo
€ 522 / mese
Spese annue Spese annue
€ 0
Proponi il tuo prezzoProponi il tuo prezzo

Classe Energetica

G
G
G
G
G
G
G
G
G
EP globale non rinnovabile:
340.00 kW h/m² anno
EP globale rinnovabile:
1.00 kW h/m² anno
EP invernale del fabbricato:
EP estiva del fabbricato:
Anno di costruzione:
1970
Riscaldamento:
Assente

Ti interessa visionare l'immobile?

Fissa un appuntamento  Fissa un appuntamento

Richiedi informazioni

Clicca su Leggi per aprire l'informativa
* Questi campi sono obbligatori

Calcola il tuo mutuo

Semplice e senza impegno
Anticipo

( % )
Mutuo

( % )

pochi semplici passi

inserisci i tuoi dati
Questionario completato
Grazie per aver richiesto un appuntamento senza impegno con un nostro Consulente del Credito e Assicurativo.

Hai inserito correttamente tutti i dati necessari e a breve riceverai una e-mail con un link da convalidare per inviare i tuoi dati.
Affiliato
Immobiliare Villabate Misilmeri Sas
Corso Vittorio Emanuele, 598 90039 Villabate (PA)

Il nostro staff


  • Alessandro Bufalino
    Affiliato

  • Barbara Cangialosi
    Coordinatrice
Corso Vittorio Emanuele, 598 90039 Villabate (PA)
Zona: Villabate-Misilmeri
Mostra su mappa
Orari: Dal lunedì al venerdì 09:00 -13:00 e 15:30 -19:30; il sabato 09:00-13:00. È possibile visionare gli immobili previo appuntamento. È possibile richiedere una consulenza creditizia gratuitamente.
Affiliato
Immobiliare Villabate Misilmeri Sas
Corso Vittorio Emanuele, 598 90039 Villabate (PA)

2026 Tecnocasa Franchising S.p.A. - P. IVA 08365160152 - Via Monte Bianco 60/A 20089 Rozzano (MI). Ogni agenzia ha un proprio titolare ed è autonoma. Privacy policy | Policy utilizzo | Cookie policy