Box / posti auto in vendita

Villabate, Via della Rinascita
€ 175.000
10 locali 10 locali
402 Mq 402 Mq
1 bagno 1 bagno

Box / posti auto in vendita

Villabate, Via della Rinascita

Descrizione annuncio

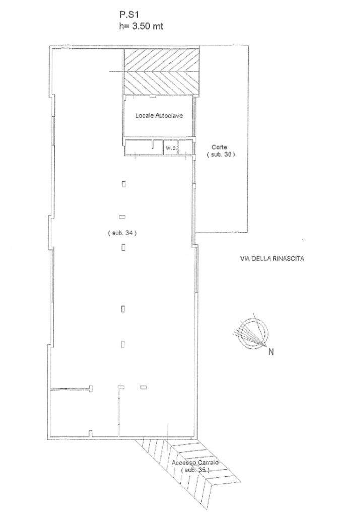
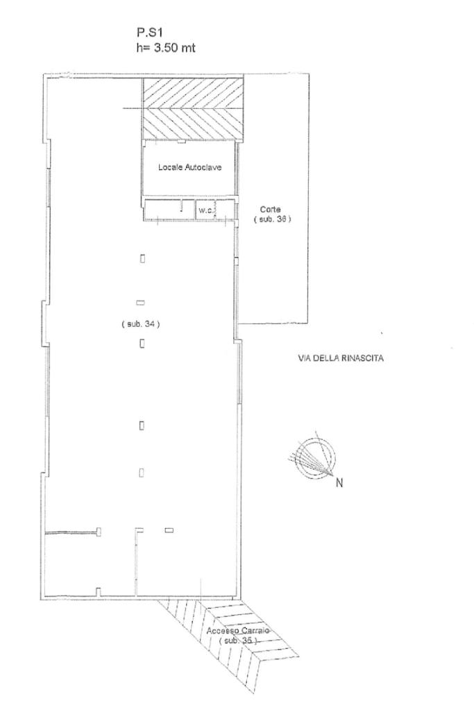
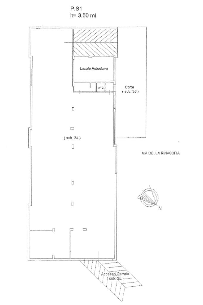
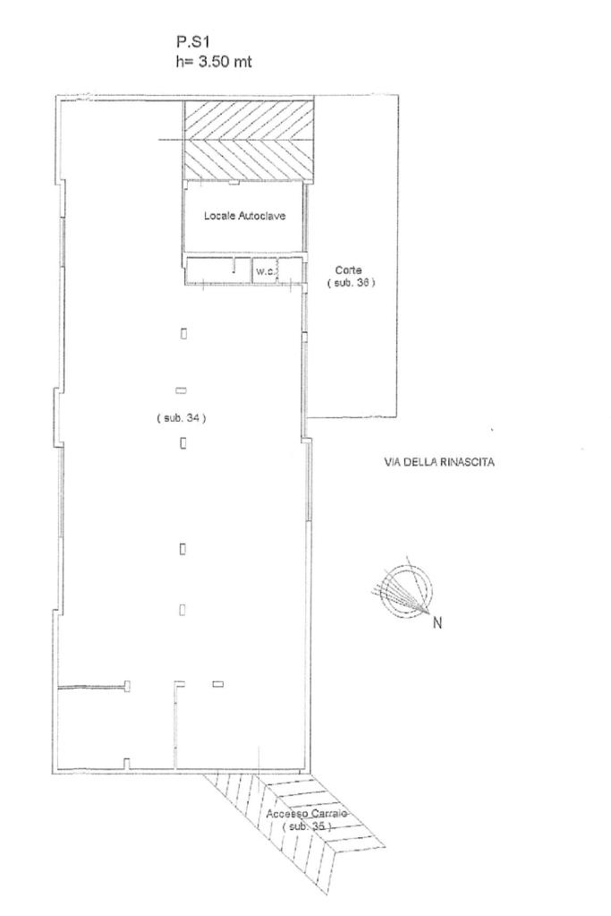
VILLABATE - VIA DELLA RINASCITA

Nel comune di Villabate, proponiamo in vendita un ampio magazzino di 381 mq, situato al piano -1 di un edificio costruito nel 1985, con attigua pertinenza esterna per due posti auto.

Il magazzino, classificato come categoria C2, è dotato di un doppio ingresso, con portone e saracinesca che assicurano sicurezza e praticità di accesso.

La struttura è progettata per essere fruibile da furgoni aziendali, rendendola perfetta per operazioni di carico e scarico merci. L'ampia metratura e il doppio accesso permette inoltre la divisione interna in due parti tra loro indipendenti.

La posizione strategica nel comune di Villabate offre un facile collegamento con le principali vie di comunicazione, garantendo semplice la logistica e la gestione delle attività.

Questa proprietà rappresenta un'opportunità interessante per chi cerca uno spazio versatile e ben strutturato per le proprie esigenze commerciali.

La visione dell'immobile e la consultazione della documentazione sono possibili in qualsiasi momento, previo appuntamento.

I NOSTRI RECAPITI:
Chiamate: 091.6146821/091.8249714;
Whatsapp: 388.1588872/091.8249714.

Mostra tutto

Nelle vicinanze

Trasporto pubblico Trasporto pubblico
Ficarazzi
Ficarazzi
2,3 Km
Trasporto pubblico
110 m
Galletti - Messina Marine
Galletti - Messina Marine
2,6 Km
Scuole Scuole
1° Circolo Didattico Villabate - Plesso "Don Milani"
550 m
Scuola Media Statale Pietro Palumbo
850 m
Scuola Elementare Fondo Palagonia
890 m
Scuole
1,0 Km
Scuola Secondaria di 1° grado "Cosmo Guastella" - Plesso Portella di Mare
1,6 Km
Farmacia Farmacia
Farmacia Europa
210 m
Farmacia Ganguzza
350 m
Farmacia D'Anna
590 m
Farmacia Ieraci-Riggio
990 m
Caporale
1,1 Km
Supermercati Supermercati
GD
560 m
Decò
580 m
Salumeria - Non solo caffè
610 m
Ard
740 m
Conad
850 m
Negozi Negozi
Lattarini
100 m
Negozi
130 m
Splendore Donna
180 m
Splendore Srl (Caterina)
200 m
Il Pane di Tipa
340 m
Bar Bar
Camilleri
500 m
Capitano
530 m
Crazy Bar
550 m
Bar
1,0 Km
Ristoranti Ristoranti
A Ferrovia
150 m
Ferro di Cavallo 2
230 m
Mordi e Fuggi
400 m
Fontana
1,0 Km
Villa Fabiana
1,4 Km
Mostra tutto

Caratteristiche

Rif.:
61120720
Piano:
Seminterrato di 4
Totale piani:
4
Posti auto:
10
Arredamento:
Assente
Condizionamento:
Assente
Mostra tutto
Prezzo Prezzo
€ 175.000
Rata mutuo Rata mutuo
€ 807 / mese
Spese annue Spese annue
€ 0
Proponi il tuo prezzoProponi il tuo prezzo

Classe Energetica

Questo immobile è esente da classe energetica
Anno di costruzione:
1985
Riscaldamento:
Assente

Ti interessa visionare l'immobile?

Fissa un appuntamento  Fissa un appuntamento

Richiedi informazioni

* Questi campi sono obbligatori

Calcola il tuo mutuo

Semplice e senza impegno
Anticipo

( % )
Mutuo

( % )

pochi semplici passi

inserisci i tuoi dati
Questionario completato
Grazie per aver richiesto un appuntamento senza impegno con un nostro Consulente del Credito e Assicurativo.

Hai inserito correttamente tutti i dati necessari e a breve riceverai una e-mail con un link da convalidare per inviare i tuoi dati.
Affiliato
Immobiliare Villabate Misilmeri Sas
Corso Vittorio Emanuele, 598 90039 Villabate (PA)

Il nostro staff


  • Alessandro Bufalino
    Affiliato

  • Barbara Cangialosi
    Coordinatrice
Corso Vittorio Emanuele, 598 90039 Villabate (PA)
Zona: Villabate-Misilmeri
Mostra su mappa
Orari: Dal lunedì al venerdì 09:00 -13:00 e 15:30 -19:30; il sabato 09:00-13:00. È possibile visionare gli immobili previo appuntamento. È possibile richiedere una consulenza creditizia gratuitamente.
Affiliato
Immobiliare Villabate Misilmeri Sas
Corso Vittorio Emanuele, 598 90039 Villabate (PA)

2025 Tecnocasa Franchising S.p.A. - P. IVA 08365160152 - Via Monte Bianco 60/A 20089 Rozzano (MI). Ogni agenzia ha un proprio titolare ed è autonoma. Privacy policy | Policy utilizzo | Cookie policy